Bharat Cooling Towers is one of the leading brand in the Cooling Towers Industries. Bharat Cooling Towers are the manufacturer of: • FRP Round Bottle Shape Cooling Towers, • FRP Rectangular Shape Cooling Towers, • Crossflow Wooden Induced Draft Cooling Towers, • Fan Less Natural Draft Cooling Towers, • Special Cooling Towers Motors. The company also provides the • Spares, • Maintenance and • Service.
 
QUICK QUERY
Name :
Email :
Contact :
Query :
   
 
 
Frp Rectangular Shape/ Square Cooling Towers
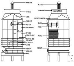
Bharat Cooling Towers is engaged with manufacturing of FRP square type cooling towers which are offered at suitable prices. Demanding users of Square Cooling Towers are diesel engine, process coolers, machine and air-conditioning plants & D.G Set ect.

The FRP square type Cooling towers we offer have fixed targeted nozzles in the hot water basin. They are designed meticulously for water distribution and are highly resistant to temperature and weathering. The use of targeted nozzles eliminates the need for separate diffusion deck. These FRP square type cooling towers are preferred for minimum drift losses, easy accessibility of internal components, high thermodynamic efficiency and low power requirements. Easy to maintain, these FRP square type cooling towers can be installed on roof tops.
 
Material Selection
All specification for this model are same as that of round bottle shaped cooling towers, although the sprinkler are replaced by nozzles in this model.

These fixed targeted nozzles are used in the hot water basin. They are specifically designed to deliver the required water distribution and are highly resistant against temperature and weathering damage. The use of target nozzles also eliminates the requirement for separate diffusion deck, which is otherwise required to provide complete water distribution throughout the fill area. These nozzles operate under gravity with utmost precision.
 
Benefits of FRP round  Cooling Towers
  • Compact design, corrosion resistant and lightweight
  • Durable service Life
  • Higher efficiency
  • Minimum drift loss of water 
  • No contamination due to dust
  • Piping cost negligible and suitable for small unit
  • Low Maintenance
Features
  • Casing, Basin, Fan deck and Fan stack in corrosion-resistant and fire-retardant FRP.
  • Hot dip galvanized supporting structural.
  • Fill material of PVC (max. temp. 50 Degree C).
  • High efficient axial Fan set cast in aluminum alloy.
  • Drift eliminators of PVC (drift percentage shall not exceed 0.05 of circulating water flow).
  • Water distribution system with GI/PVC pipe and PP nozzles.
 
Capacity Available :   3 Tones to 600 Tones in Two &Single Cell
 
Designed by : Marthub Infocom